GAS NETWORK DESIGN

 
         
 

 
         
 

Fine GAS belongs to the 4M BIM Suite of software for Architecture & Engineering. Powered by the technology they work directly in DWG and offer an AutoCAD-like environment. The 4M BIM Software are renown by BIM experts to offer the easiest and cheapest migration to BIM for AutoCAD or CAD users.

> Get the Concept

> Download the trial version

> Tutorial videos

> Contact Sales

> Eshop

 
 

 

New FineGAS 24 Major Upgrade with additional advanced features

 

BIM Innovative Design: New BIM design with a total code restructure based on the ODA-Teigha libraries and a 64bit Architecture to ensure unrivaled performances on the display engine and the open/save & read/write functions.

New Interface: New BIM interface including Ribbon menus, enhanced toolbars, sophisticated property panel, enhanced dialogs for the BIM entities and widespread use of grips.

Advanced Modelling Features

  • New BIM objects (i.e. walls of any shape, corner openings, continuous surfaces on the wall joints with composite building elements etc)
  • Quick editing of the BIM objects, due to the extended property panel in conjunction with the filter selection and the use of grips.
  • Intelligent building level/floor management (images as Xrefs, smart level editor and others).
  • Clash detection while designing the Gas/HVAC/Plumbing/Electrical networks
  • Flexibility to define/edit different heights in a space.
  • Option for real time editing of the network diameters/sizes (i.e. desired dimensions) through the Property Panel.
  • Integration of the 3D building services installation drawings within the 3D architectural model
  • High quality fast rendering to create realistic views of both, the building shell and the MEP installations (piping network, air-duct network etc).

Full BIM Compatibility and Interoperability: Maximum interoperability with every BIM application (i.e. Revit, Archicad etc) and seamless integration among the FINE-MEP verticals, as well as with IDEA and FineGREEN.

New Powerful CAD Engine: Embeds all the new features of the latest 4MCAD v.24, more powerful than ever, engine.

 

 

 

 
 

FineGAS Features & Highlights

 
 

EASY TRANSITION

The Easiest Switch for CAD Users to BIM and Gas Network Installation Software

In Fine GAS you can create your BIM project in 2D or 3D using very simple 2D commands very familiar to any CAD user like polylines, trim, extend, entity snaps, copy... FineGAS combines a state-of-the-art BIM technology and an AutoCAD-like look and feel to help you to draw your project and networks faster and easier.

Draw in 2D and get all the 3D Automatically

FineGAS includes all the tools you need to draw the building in 2D or 3D but if you don't need it you can simply insert a 2D DWG drawing of the floor plan to use it as a background and focus on the plumbing installation. You can also use our CAD features to quickly draw some walls.

Drawing the building in 3D with BIM objects is not required to proceed to the piping calculations but you can also do it in a few clicks. Calculation and design are independent modules : if you have a simple project you may like to use only the calculation module to enter just the data in a table and proceed to the calculations.

If you feel like drawing the building in 3D you simply need to focus on floor plans using the intelligent and parametric objects of the AutoBLD menu. You can define walls, openings, slabs, stairs and more with just a few clicks and FineGAS will build the 3D for you. A simple double-click on any object will display its properties for modification. You have all the required tools to create or modify the BIM model without using any other external software.

Alternatively you can also open a project created with any other 4M BIM Software and will not have to draw the building. You may for example open a project created with IDEA Architecture.

Maximum Compatibility with AutoCAD

Unlike other BIM Plumbing Software, FineGAS is producing files directly in DWG and includes features to convert the sophisticated BIM objects that can't be seen in CAD software into simple vectors that can be further edited in AutoCAD®. Sharing 2D or 3D files with other professionals is therefore much easier.

Includes a Full CAD Software

This Plumbing Software includes all the features of 4MCAD , our alternative to AutoCAD®. You get 2 software in one, your can keep using CAD to edit some DWG drawings while using our BIM technology to increase your productivity when working on most of your projects. At least you can feel safe and migrate to BIM at your own pace.

 

NETWORKS

Intelligent Plumbing Design

Unlike in other BIM software, FineGAS' modern BIM technology does not come at the expense of speed, it is just the opposite : you just need to draw a few single lines and the software will do the rest.

Extensive Libraries of Elements and Fittings

FineGAS includes extensive libraries of hydraulic receptors and fittings for the bathroom, kitchen and all the different scenario you can imagine for the gas network of your building. These libraries can also be extended by the user who can change the symbols and add more components.

Network Design (Autorouting)

Pipes can be drawn with simple commands (just polylines) but you can also take advantage of some expert routing commands like "Pipes Parallel to Wall" or "automatically connected to the receptors" to speed up the process. 

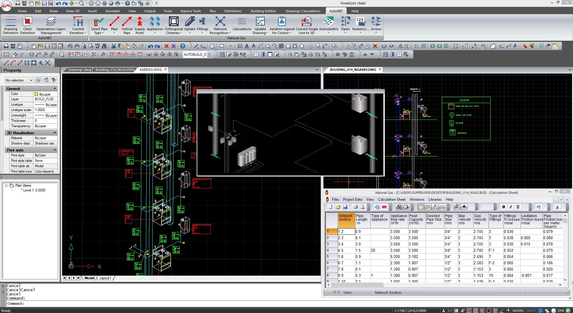
Update Drawing from Calculation

After performing the calculations you will update the drawing from the calculation module and insert labels in the floor plans showing the results and details you would like to display about each component. Pipes diameter will be calculated and pipes will be resized in the design.

FineGAS will also help you to create automatically the legend of your symbols and of course to generate all the technical drawings like the vertical diagrams of your installation.

 

CALCULATIONS

Calculate your Gas Installation

FineGAS' Calculation module is closely interacting with the installation drawing. Calculations are performed following the widely accepted EN1775 (European Norm) and the DVGW-TRGI (German general framework).

Calculate from the Drawing

The calculations Component is automatically updated from the installation drawings through the AutoNET group of commands. The installation networks are recognized and transferred into the calculation sheets. Calculations rely on a rich Methodological background, based on International and European standards. You may also modify these data if you want for example to anticipate a future extension of the network.

All the Results in a few clicks

Besides the piping calculations, FineGAS calculates all the necessary equipment, pressure drops, flow rates etc, as well as the bill of the materials, technical descriptions/specifications and other results.

An alternative way to get the calculations is by using the intelligent FineGAS wizard. The user describes the Gas network installations in a visual way, through the existing templates (slides) and then the wizard generates the vertical diagram plus the results of the calculations.

 

2D/3D OUTPUTS

Get Automatically all the Technical Drawings

After proceeding to the design of the network and calculations our MEP Software will let you generate all the technical drawings and reports you need.

Vertical Diagrams/Charts

Our MEP Software will generate for you the vertical diagrams of your Gas network installations in DWG drawings you can further modify and/or share.

Technical Reports & Bill of Materials

FineGAS will generate a document with the calculation results and the bill of materials describing the quantities of each of the elements required to build the installation. The template of this document can be customized and you can chose which results you want to display.

Project Drawings

The floor plans of the Building will be updated with the results of calculation with labels to define the details of each component. As a result you will be able to generate floor plans in DWG showing all the receptors and networks you have defined.

 

BIM

Feel the Power of BIM Software for Plumbing Installations

4M is among the companies with the longest experience of BIM with a complete suite of BIM Software for Architecture & Engineering first released in 1993. The 4M BIM Software are renown by experts to be the BIM software offering the easiest migration for AutoCAD users as they are the only ones to use DWG as their native file format and an AutoCAD-like look-and-feel.

BIM Design and Collaboration in FineGAS

The close interaction of our Calculation module with the BIM model will help you to make all the calculations of your plumbing installation directly from the model. FineGAS will simply read the project drawing to understand the project, the properties of the network, proceed to calculations and finally update the drawings with the results.

Last but not least you will be able to collaborate with other BIM software and share with other architects and engineers the discipline-specific contents you added to the common BIM project.

The BIM information can also be extracted to create a Bill of Materials showing the quantities and details of the various elements you created in the water supply & sewage systems. You can calculate the cost and get a detailed description of the elements and fittings you need.