Disegno

dell’installazioni Elettriche

 
         
 

 
         
 

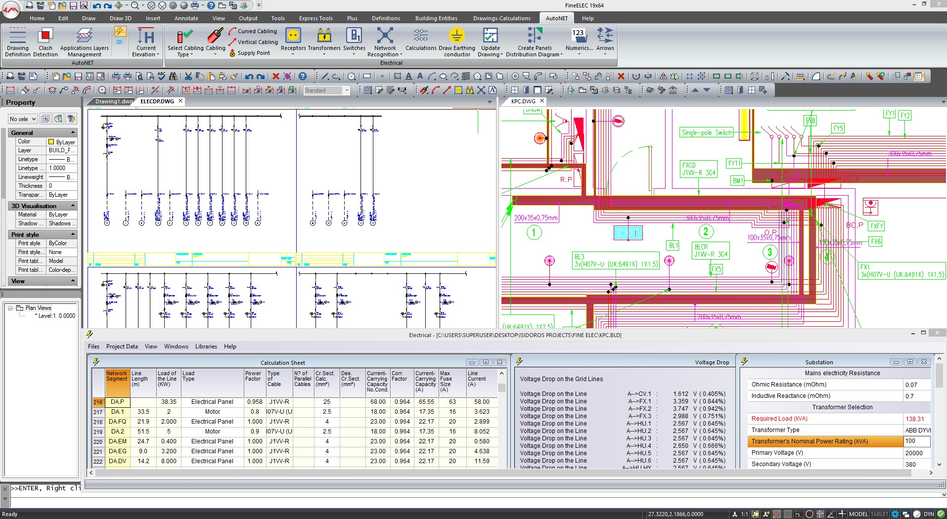
FineELEC combina Disegno e Calcoli in un Ambiente Pienamente Integrato, eseguendo tutti i calcoli necessari per ogni Installazione elettrica, direttamente dai disegni, generando così automaticamente il completo output del progetto: rapporto dei calcoli, distinta base dei materiali e disegni finali (piante viste, diagrammi a pannello e schemi a blocchi) pienamente aggiornati.

> Ottieni il Concetto

> Scarica la versione di prova

> Contatta i Venditori

> e-shop

 
 
 
 

FineELEC Caratteristiche Dettagliate

         
 

Facile da Imparare ed Usare

FineELEC combina un ambiente simile ad AutoCAD con l’avanzata tecnologia BIM, i quali aiutano l’utente a disegnare ogni installazione elettrica usando semplici 2D comandi, mentre il vero modello BIM 3D resta sempre visibile e modificabile. Usando DWG come nativo formato file, FineELEC fornisce la più facile transizione per gli Ingegneri provenienti da ambiente AutoCAD.

Intelligente BIM Disegno Rete

FineELEC adotta un approccio intelligente per collegare i recettori eletrici ed eseguire l’Autorouting delle Reti di Cablaggio.

Aggiornamento intelligente per i Disegni dal Calcolo

FineELEC riconosce la rete d’installazione elettrica e procede in calcoli dettagliati per creare il rapporto di calcoli. Viste di piante e disegni di pannelli vengono automaticamente aggiornati, mentre Simboli e Denominazioni vengono automaticamente inseriti, perfezionando i disegni del progetto. Per quanto riguarda la metodologia di calcolo in se, FineELEC incorpora i Standard e le Norme internazionali più rinomate. Più specificamente, FineELEC include i Standard IEC60364 (Standard Internazionale), HD60364 (IEC armonizzato per l’Europa), EN HD 384 (Norma Europea proveniente da IEC60364 armonizzato con CENELEC), VDI (Standard Tedesco) e BS 7671 (Standard Britannico).

 

 

 

 

Documentazione Completa del Progetto

FineELEC genera tutti i disegni del progetto (viste piante, diagrammi a pannello e schemi a blocchi) in formato DWG, così possono essere ulteriormente modificati e/oppure condivisi dall’utente. Il programma estrae anche la distinta base dei materiali dell’installazione (cavi, dispositive di protezione) insieme ad altri rapporti tecnici e di specifiche.

 

Alta produttività BIM in Ambiente Collaborativo

FineELEC collabora con altri BIM software e permette di condividere con altri architetti ed ingegneri i contenuti specifici aggiunti dall’utente al comune progetto BIM.